施工事例

Renovation Works

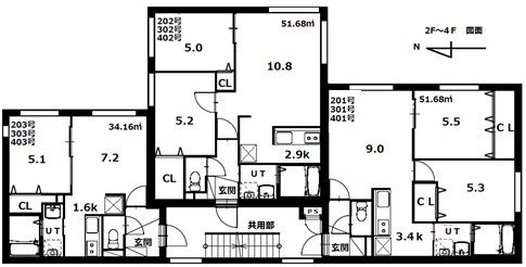
札幌市西区 2LDK 8世帯 / 1LDK 3世帯

 

【築年月】2015年1月
【交通】地下鉄東西線『発寒南』駅 徒歩8分
【間取構成】2LDK8世帯・1LDK3世帯
【構造】鉄筋コンクリート造4階建
【敷地面積】285.54㎡
【延床面積】605.52㎡
【設備】シャンドレ,駐輪場,灯油FF,クローゼット,アクセントクロス,全室照明,ペット飼育可,灯油ボイラー(2LDKのみ),ネット無料,シューズボックス,ウォークインクローゼット,宅配ボックス