施工事例
Renovation Works
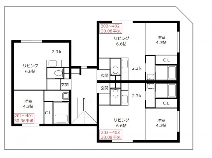
札幌市西区 1LDK 11世帯
【築年月】2018年3月
【交通】地下鉄東西線『発寒南』駅 徒歩6分
【間取構成】1LDK 11世帯
【構造】鉄筋コンクリート造4階建
【敷地面積】168㎡
【延床面積】398.92㎡
【設備】シャンドレ,TVモニター付きオートロック,灯油FF,クローゼット,J−com対応,ペット飼育可,ネット無料,シューズボックス
Renovation Works
【築年月】2018年3月
【交通】地下鉄東西線『発寒南』駅 徒歩6分
【間取構成】1LDK 11世帯
【構造】鉄筋コンクリート造4階建
【敷地面積】168㎡
【延床面積】398.92㎡
【設備】シャンドレ,TVモニター付きオートロック,灯油FF,クローゼット,J−com対応,ペット飼育可,ネット無料,シューズボックス