施工事例
Renovation Works
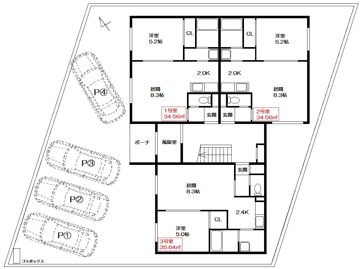
札幌市白石区 1LDK 12世帯
【築年月】2015年9月末
【交通】地下鉄東西線『南郷18丁目』駅 徒歩5分
【間取構成】1LDK12世帯
【構造】鉄筋コンクリート造4階建
【敷地面積】259.43㎡
【延床面積】485.04㎡
【設備】駐輪場・TVモニター付きオートロック シャンドレ
灯油FF・瞬湯
ウォシュレット・全室照明・クローゼット
インターネット12M・wifi無料(J-com)
Renovation Works
【築年月】2015年9月末
【交通】地下鉄東西線『南郷18丁目』駅 徒歩5分
【間取構成】1LDK12世帯
【構造】鉄筋コンクリート造4階建
【敷地面積】259.43㎡
【延床面積】485.04㎡
【設備】駐輪場・TVモニター付きオートロック シャンドレ
灯油FF・瞬湯
ウォシュレット・全室照明・クローゼット
インターネット12M・wifi無料(J-com)